로고 로고

스페이스씨앤
로그인 회원가입
  • 포트폴리오
  • 포트폴리오

    스페이스씨앤은 보다 한걸음 더 나아가겠습니다.

    포트폴리오

    보다 발전된 기술로 보다 정교한 제품을 생산합니다.

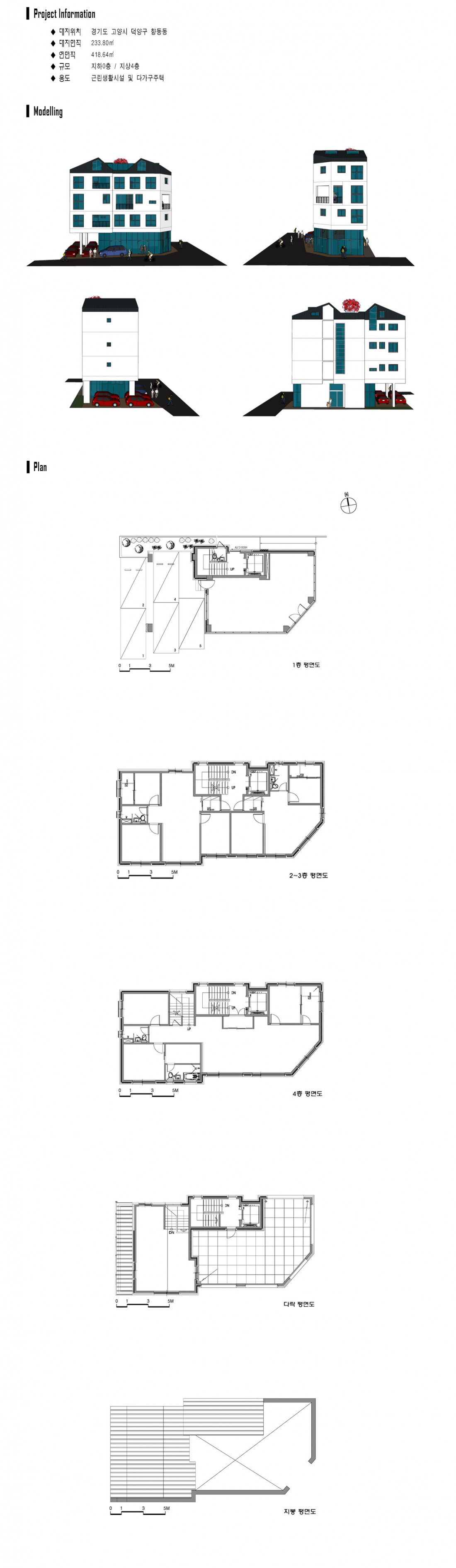
    고양시 덕양구 향동동 근린생활시설 및 다가구주택

    대지위치 경기도 고양시 향동동
    대지면적 233.80 m2
    연면적 418.64 m2
    규모 지상4층
    용도 근린생활시설 및 다세대주택

    목록으로

    본문

    Detail view

    4bb06f8999cde3262f99f40ce4835dd8_1658733865_9035.jpg




    4bb06f8999cde3262f99f40ce4835dd8_1658733866_6971.jpg




    4bb06f8999cde3262f99f40ce4835dd8_1658733874_2778.jpg




    4bb06f8999cde3262f99f40ce4835dd8_1658733872_6471.jpg




    4bb06f8999cde3262f99f40ce4835dd8_1658733876_3384.jpg




    4bb06f8999cde3262f99f40ce4835dd8_1658733878_4175.jpg




     


    추천0 비추천0



    댓글목록

    등록된 댓글이 없습니다.

    Total 79건 4 페이지
    • RSS

    검색