로고 로고

스페이스씨앤
로그인 회원가입
  • 포트폴리오
  • 포트폴리오

    스페이스씨앤은 보다 한걸음 더 나아가겠습니다.

    포트폴리오

    보다 발전된 기술로 보다 정교한 제품을 생산합니다.

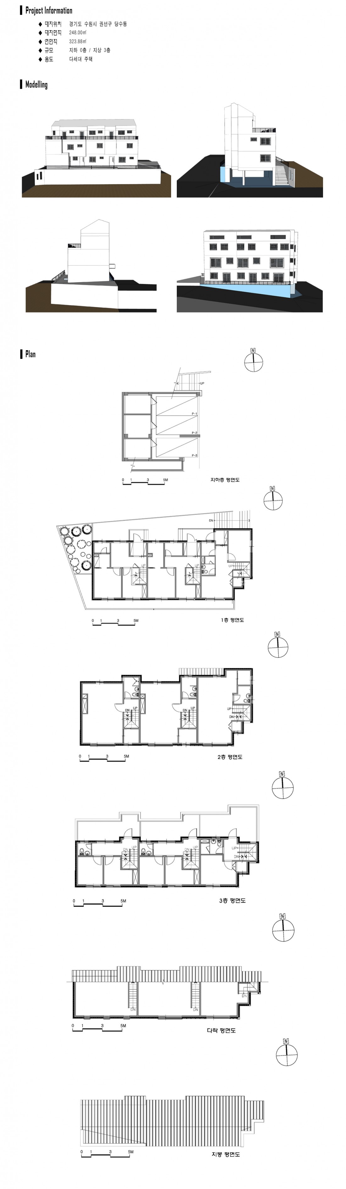
    수원 권선구 당수동 다세대주택

    대지위치 경기도 수원 당수동
    대지면적 248.00 m2
    연면적 323.88 m2
    규모 지상4층
    용도 다세대주택

    목록으로

    본문

    Detail view

    6ecfdac2eca1d4cbaafe91960d072584_1656477564_4557.jpg



    6ecfdac2eca1d4cbaafe91960d072584_1656477564_7749.jpg



    6ecfdac2eca1d4cbaafe91960d072584_1656477748_253.jpg



    6ecfdac2eca1d4cbaafe91960d072584_1656477748_8956.jpg




    6ecfdac2eca1d4cbaafe91960d072584_1656477747_514.jpg




    6ecfdac2eca1d4cbaafe91960d072584_1656477746_849.jpg




    6ecfdac2eca1d4cbaafe91960d072584_1656477741_4055.jpg




     

    추천0 비추천0



    댓글목록

    등록된 댓글이 없습니다.

    Total 79건 4 페이지
    • RSS

    검색