로고 로고

스페이스씨앤
로그인 회원가입
  • 포트폴리오
  • 포트폴리오

    스페이스씨앤은 보다 한걸음 더 나아가겠습니다.

    포트폴리오

    보다 발전된 기술로 보다 정교한 제품을 생산합니다.

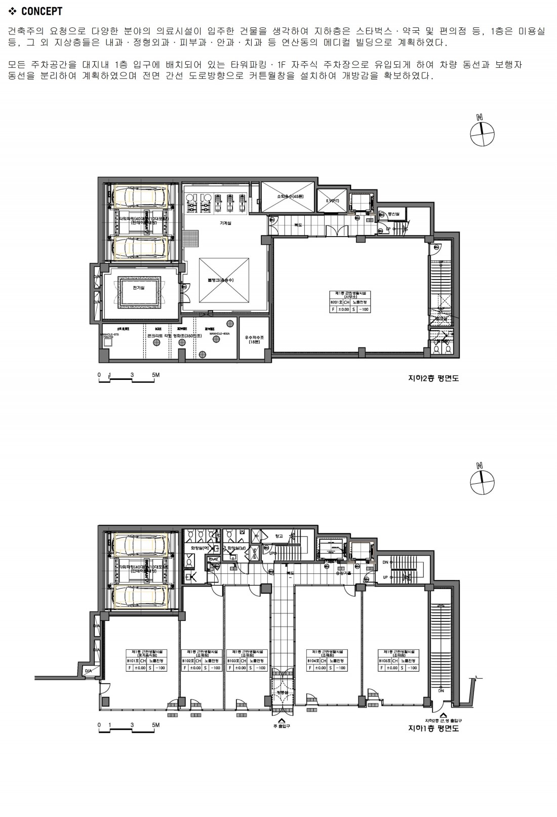
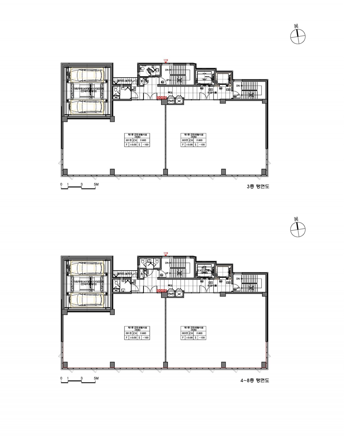
    부산 연제구 연산동 메디컬프라자

    건축위치 부산광역시 연제구 연산동
    건축규모 지하2층, 지상9층 / 1개동
    건축구조 철근콘크리트구조(RC조)
    주요마감 인조석 마블스톤, 화강석
    건축면적 445.09㎡ 연면적/3,701.74㎡
    주차계획 자주식 6대, 타워(기계)주차 38대

    목록으로

    본문

    Detail view


    f9ca81c19912395d11e3f6931eb86c35_1735758433_9115.jpg
     

    f9ca81c19912395d11e3f6931eb86c35_1735758349_5745.jpg
    f9ca81c19912395d11e3f6931eb86c35_1735758349_9741.jpg
    f9ca81c19912395d11e3f6931eb86c35_1735758350_2888.jpg
    f9ca81c19912395d11e3f6931eb86c35_1735758350_4414.jpg
    f9ca81c19912395d11e3f6931eb86c35_1735758351_0117.jpg
    f9ca81c19912395d11e3f6931eb86c35_1735758351_3138.jpg
     
     

    추천0 비추천0



    댓글목록

    등록된 댓글이 없습니다.

    Total 79건 3 페이지
    • RSS

    검색